2024-08-14 13:31:15
发布者:中其类型:中其建筑设计 中其设计
医疗工艺设计贯穿着医院建设的全过程,是从前期规划到落地建设不可或缺的专业。
医院战略规划阶段,通过对现行医疗政策、区域医疗资源和医院需求进行研究,明确项目定位及发展方向;医院学科规划阶段,结合项目的发展愿景、经营模式和现有医疗数据,定量推算医疗指标;工艺一二级流程方案设计阶段,提供专业流程设计支撑专业医疗行为;技术条件设计阶段,通过细节设计提升空间实用性及品质感。

项目是位于深圳市福田区侨城东路西侧的大型综合医院。
一期已建成建筑面积36.7万平方米,床位数2000张。
二期规划建筑面积20.6万平方米,规划床位数1000张,建成后,医院医疗床位总数3000张。

Episode Ⅰ
医院战略规划阶段——项目定位及发展规划研究
一、项目医疗规划定性研究
该阶段的主要目标是完成一二期资源整合、落实二期医疗规划设置。在二期项目启动前,一期整体运营已达常态化,二期涉及众多医疗功能的重组和医疗流线的重置,如何保证一期正常运营,同时高效稳定推进二期项目的建设极具难度和挑战。
医疗工艺团队通过建筑模块分析及功能板块面积验证,发现建筑面积无法满足业主需求,如何取舍成为重中之重。策略1:从地方疾病谱、运营方优势两个维度进行全面分析;策略2:现场调研、实地踏勘。

二、项目定位研究
医疗工艺团队在了解项目现有规划和运营状况的基础上,从医疗政策、区域医疗资源和医院需求几个维度进行分析,最终形成明确的二期定位,并从功能定位、学科定位、经营定位、设计定位等几方面进行描述。
Episode Ⅱ
医院学科规划阶段——定量推算医疗指标
通过医院的战略部署及管理规划,从床位数、建筑规模、日门诊量等参数定量数据,推算具体学科功能需求、设置规模、主要医疗设备等指标数据,分析各医疗功能单元的空间规划及功能关系,建立各个科室详细的功能房间面积清单,医疗用房配置要求,设备配置清单,为建筑设计提供明确的医疗量化需求。

从具体的七项功能板块和单列项进行研究,重点分析一二期功能共享和独立的部分。同时,大型医疗设备是医院诊疗能力的体现,通过与院方技术沟通、需求面积测算、以及政策可行性分析,得出二期扩建的大型医疗设备清单。以及确定学科规划后预估每个科室详细的功能房间面积清单。

Episode Ⅲ
工艺一级流程方案设计阶段——专业流程设计提升效率与品质
本阶段的目标是解决平面设计中的挑战,实现医疗资源的高效利用。设计充分尊重建筑可生长式的布局模式,并延续原规划理念。二期建设延续一期医疗街生长,成为医院空间序列中重要节点,新、旧建筑肌理形成相互交融的有机整体。并且通过对一期功能板块的全面梳理和问题发现,在二期建设中进行流程再造。
一、一期布局特征在二期建筑中得到强化
一二期之间的患者活动休息长廊是一期医疗街的扩展,并成为重要的轴线转换节点。整体院区形成三横三纵网格状的主次街格局。沿主、次街方向,连廊与架空空间形成连续闭合的无风雨慢行系统,方便来自各方向的访客到访门诊、住院单元。
二、医疗空间规划及功能关系
从图中可以看到住院综合楼是一栋楼,包含了门诊、医技、住院等功能板块。

二期重点规划了三个中心,其中肿瘤中心和心血管医学中心涉及了门诊、医技、住院多个功能板块,如何将两个中心合理布局是工艺一级流程设计的难点。我们对建筑布局进行了多方案对比分析,主要目标是患者就诊流线尽量不交叉。功能联系密切的科室集中设置,并采用专用电梯的模式进行智能化控制。

三、一二期医疗功能有序衔接
一二期通过中心医疗街联系,形成一个整体。各个楼栋之间通过风雨连廊相连,给予医护和患者人性化的关怀。一二期科室设置的无缝联系,以手术室为例:二期手术室与一期手术室同层设置,科室内部通过无风雨连廊联系,提高手术室使用效率,方便医护人员的有效管理。

Episode Ⅳ
工艺二级流程方案设计阶段——先进理念引导平面布局
由于港大深圳医院引进香港大学现代化管理模式,院方有自己特色的科室经理管理机制、IMC(International Medical Center)患者服务体系以及香港职业医师的操作方式与习惯,这些都需要在设计过程中进行多方面的融合转变。
一、放射科平面布局
美国放射协会定义了MRI设备内的四个安全区域,MRI磁场辐射程度由一区至四区递增,因此患者在第一等候区进行金属检测,到第二、第三等候区进行候诊,再通过控制室的监管进入MRI检查室。
在放射科,规划了四台MRI,平面布局方案植入MRI布局四分区的设计理念。

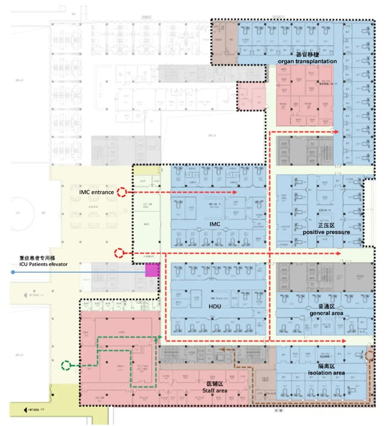
二、重症医学科(ICU)平面布局
ICU的平面布局参考英国和美国规范条例进行布局设置。
从图面的颜色划分就能看出,采用的是分区模块化的设计,主要分6个区,每个区(除隔离区)内另外设置一间负压隔离ICU 。
IMC区靠外侧设置,有独立的等候区和出入口。ICU病房设置以单人间为主,另设置部分双人间、四人间,单人间均不低于20㎡;并且考虑了特殊情况隔离ICU床位的拓展。

医院不仅是诊疗的设施,更是倡导和引领健康生活的场所,因此设计在满足功能性和运营高效性的同时,将人性化和可持续性发展理念贯穿始终。
肿瘤中心同层设置四个病区,突显中心化理念,在提高医护人员管理效率的同时,强化了规划“院中院”的概念。

Episode Ⅴ
技术条件规划阶段——细节因素决定空间品质
这个阶段,医疗工艺的价值是辅助验证,实现设计规划的完美落地。
根据医疗行为指导各个功能房间的家具、设备及机电条件量化设计,提供为满足医疗使用功能而需要的具体建设工程技术指标,作为建筑设计开展施工图设计、室内设计的依据,并与建筑设计和室内设计的深化、完善过程相配合。具体工作主要包括医疗工艺三级流程设计和提供专项科室落地性咨询服务。

医疗建筑是各类建筑中功能流程最复杂的建筑之一,而医疗设备医疗手段的快速迭代,更是促进了医疗建筑的不断更新。
医疗工艺流程设计是使用方与建筑工程设计之间的一座桥梁,如何架好这座桥梁,全面科学的为建筑设计提供咨询服务,建立客观准确的评价体系是医院设计中至关重要的一环。
参考文献:
[1] 郭良.老院区如何进行流程再造.医养环境设计,2017.
[2] 刘建军.医疗工艺设计与运营管理[J].中国医院建筑与装备,2016,(2):48-51.
[3] 克里斯托弗·纽曼.医疗工艺设计“三段论” [J]. 中国医院建筑与装备, 2012,(6): 22-5.
[4] 罗运湖.现代医院建筑设计第二版[M].北京:中国建筑工业出社,2009.
[5] 季超.丛小密.新建医院规划难点初探一一以北京大学第一医院城南院区为例[J].中国医院建筑与装备,2017,18(2):68-71.
[6] 田毅.医疗工艺设计的实施方法与技巧[J]. 中国医院建筑与装备, 2016, (9): 33-6.
[7] 刘红梅.张星.从业主角度谈大型项目合同界面管理[J].基建优化,2007,28(1):22-24.
[8] 视觉中国