2024-08-14 13:31:15
发布者:中其类型:中其建筑设计 中其设计
医院的改扩建是一次全院设施整合和功能流程再造的过程,如何衔接既有院区的医疗功能、医疗流程、设施设备,是改扩建设计的关键性技术难点。相较于新建医院来说,其主要特点主要包括场地条件受限、运营主体条件情况复杂、功能组团合理性与落地性的平衡、资源配置可能会造成浪费、原始资料的准确性等方面。

医疗工艺设计贯穿项目建设的全过程,在建设进度计划里,其会按照医疗工艺的定位、目标及成果,分阶段向相应专业提资并完成工作任务,鉴于此,在各个阶段的进度计划中应确保建筑设计能够获得相应的提资;在项目设计过程中,对应到建筑设计的各个阶段,主要把控工作环节包括:医疗工艺规划、医疗工艺方案设计、医疗工艺条件设计及相关医疗专项的管控等。

上海市第一人民医院南部院区改扩建项目实践
上海市第一人民医院(以下简称“市一”)南部院区二期项目是上海市“十四五”期间五大新城中的重点推进项目。项目总用地面积约21.6万平方米,二期总建筑面积约15.9万平方米,其中地上约9.6万平方米,地下约6.3万平方米。一期原核定床位数550床,二期新增核定床位600床。

首先,通过现场踏勘调研了解项目一期的运营情况及面临的问题,同时针对一期现有存量及腾挪情况进行盘整。结合具体现状问题加以分析,并采用以“增量带动存量”的整体设计思路,提升优势学科,梳理整个院区的功能布局、医疗流程、医患流线、洁污流线、物流体系以及地下空间利用等进行统筹考虑和整体设计。

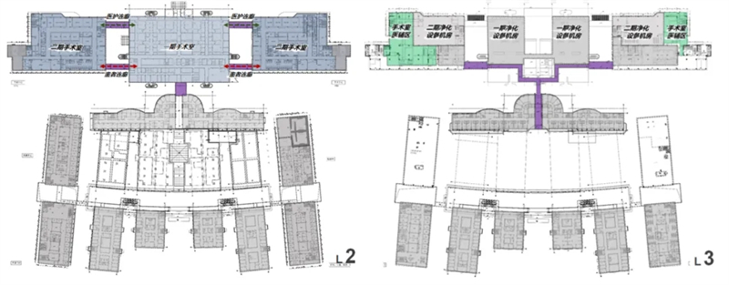
第二,通过对现有建筑医疗流程及需求的了解,结合总体规划定位、现状条件和运营状况等方面,与建筑设计团队讨论并明确二期扩建的模式,以“模块化生长的医疗功能拓展”模式为主导方向进行扩建。并针对前期发现的痛点问题提出相应的应对策略。

第三,梳理一期七项功能设施用房和二期需补足的功能及面积,明确了全院总体功能定位及面积。通过门诊量、床位数、建筑规模等参数定量数据,推算出具体学科的功能需求、设置规模、主要医疗功能数据等指标。深入分析各医疗功能单元的空间规划及功能关系,确定主要功能之间的组织形式,明确医疗用房配置要求和大型设备配置清单,为建筑设计提供明确的医疗量化需求。

结合医院的发展目标、功能定位、建设规模、运行服务模式等需求,通过对应空间指标和空间资源的完整结合,进一步明晰功能单元用房细化的面积要求和功能要求,反向推导验证一级流程的合理性,并与院方和建筑设计单位共同探讨,最终形成一二期总体功能规划。

在工艺方案设计阶段,将医疗需求转化为建筑需求,明确建筑内外部交通组织、内部核心筒设计、护理单元选型等重要环节。设计过程中,充分尊重建筑的可生长式布局模式,并延续原有的规划理念。同时,通过详尽梳理,将一期功能板块中的缺失和不合理流线、功能规划,在二期建设中,进行必要的流程再造,以完善和优化功能布局。

通过对类似改扩建案例的综合分析,我们发现医院改扩建项目的核心是在保障持续运营的前提下,解决核心问题并增强实施性与精准性。单纯照搬新建项目的“完美”标准,追求从无到有的布局,难以实现改扩建的初衷。
因此,结合实际约束条件,制定具备适应性的优化方案至关重要。
对于医疗工艺设计单位来说,改扩建项目对其发现问题、梳理问题并找到核心矛盾的能力提出了更高挑战。
在方案制定过程中,除了追求“以人为本”,还需注重功能合理性与可实施性的把控,平衡各种需求和条件,展现出方案平衡的艺术。